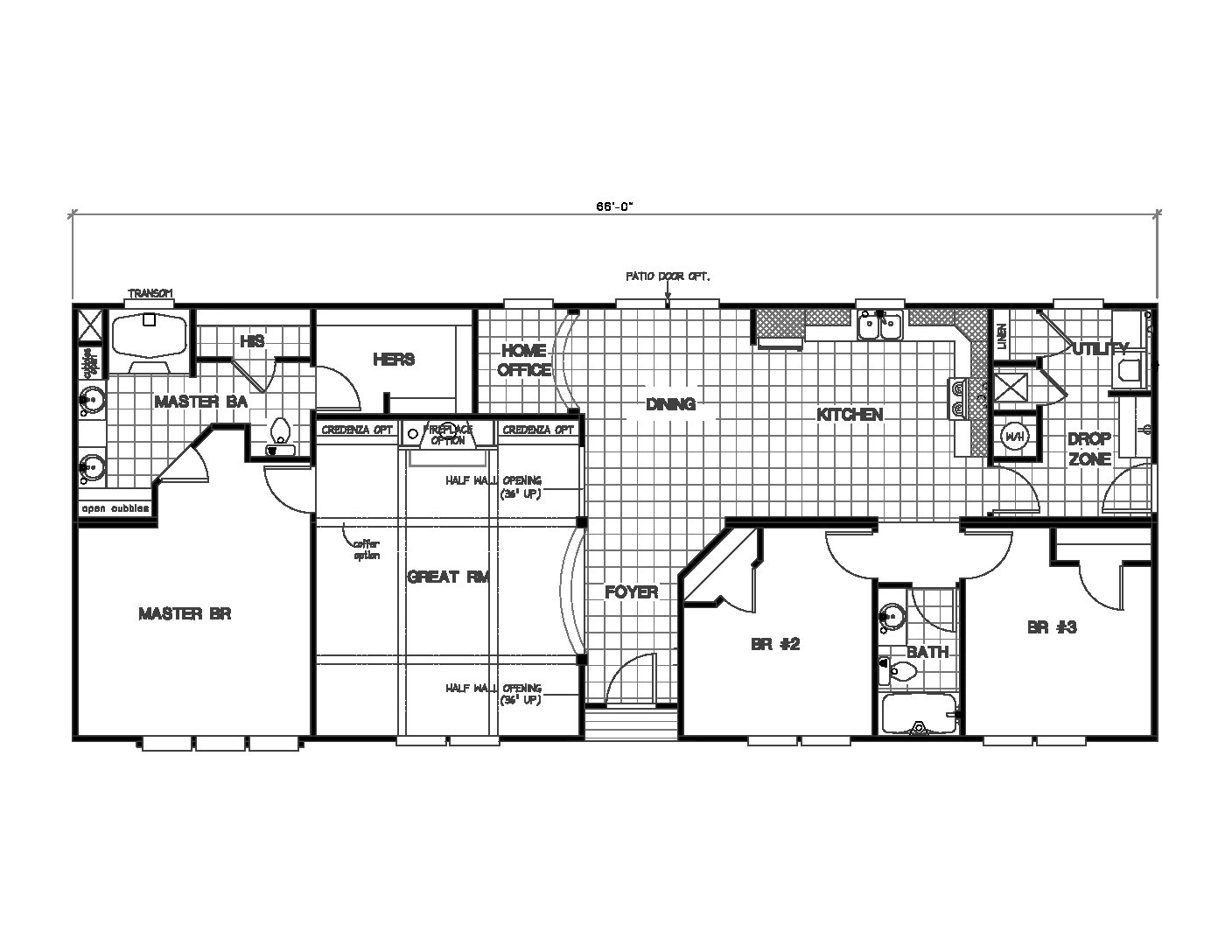
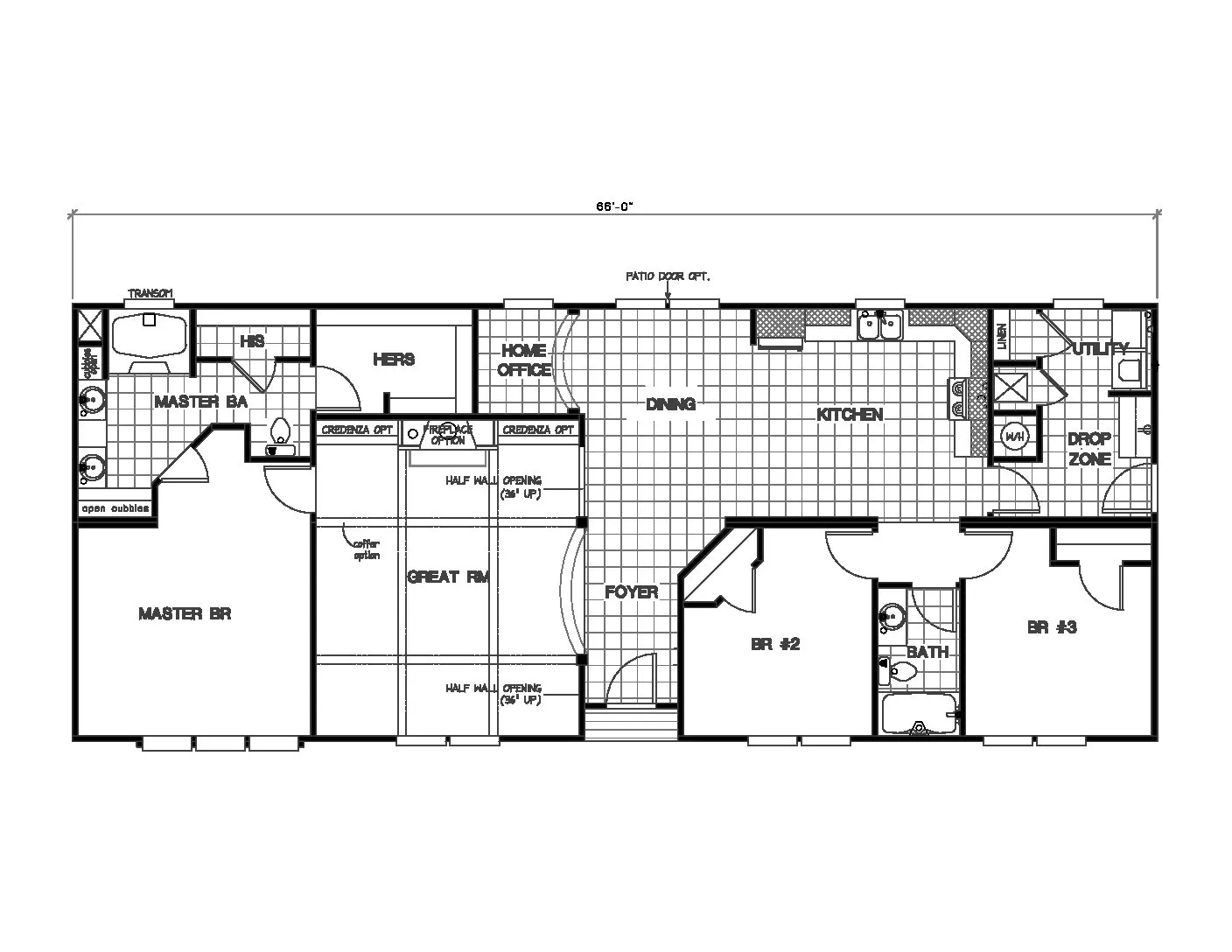
The Brookstone features 3 bedrooms, 2 bathrooms, large archways connecting rooms, a rustic fireplace with built-in bookcases, and a large master bedroom with a gorgeous master bathroom. If you are looking for beauty and a rustic feel, then The Brookstone is for you. You can customize your home with additional features, and our team will help you through every step of the home building process.
Speak to a knowledgable CCH agent!
Monday - Friday: 9am - 5pm
Saturday: 10am - 5pm
Sunday: Closed
