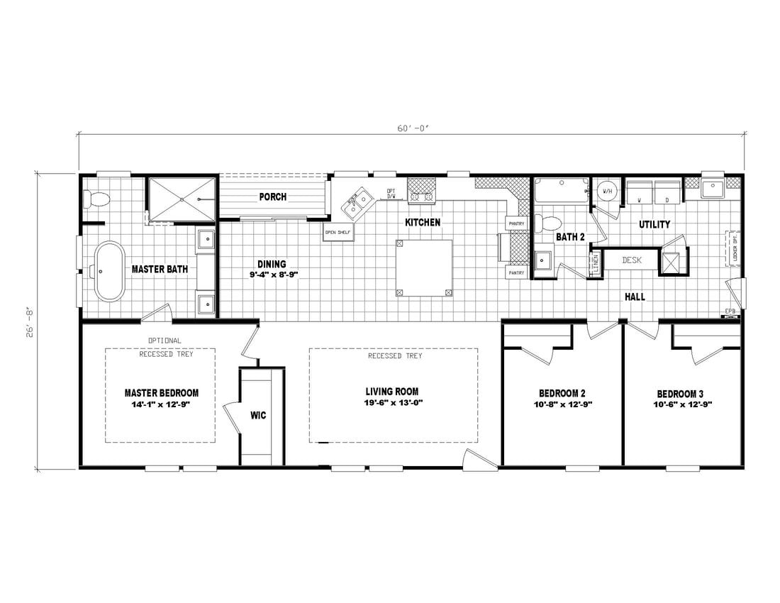
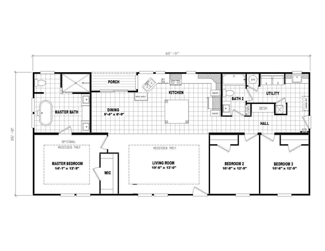
The Carlyle, a very bright home with 3 bedrooms and 2 good-sized bathrooms, features a large master suite and an open floor plan, including dining area and kitchen. If you are looking for comfort and beauty, then The Carlyle is for you. You can customize your home with additional features, and our team will help you through every step of the home building process.
Speak to a knowledgable CCH agent!
Monday - Friday: 9am - 5pm
Saturday: 10am - 5pm
Sunday: Closed
