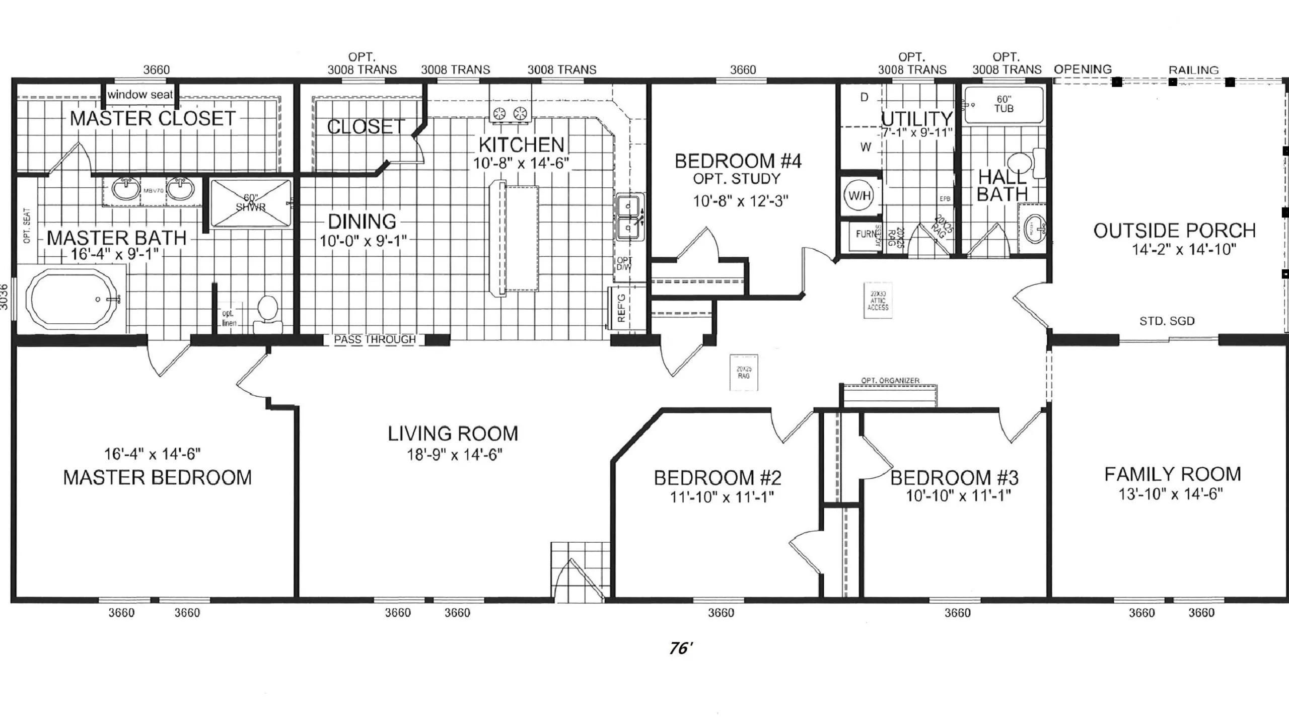
The Garner boasts 4 bedrooms, 2 good-sized bathrooms, a large living room, and a separate family room with an attached almost 200 SF porch. If you need easy access, then The Garner is the house for you. You can customize your home with additional features, and our team will help you through every step of the home building process.
Speak to a knowledgable CCH agent!
Monday - Friday: 9am - 5pm
Saturday: 10am - 5pm
Sunday: Closed
