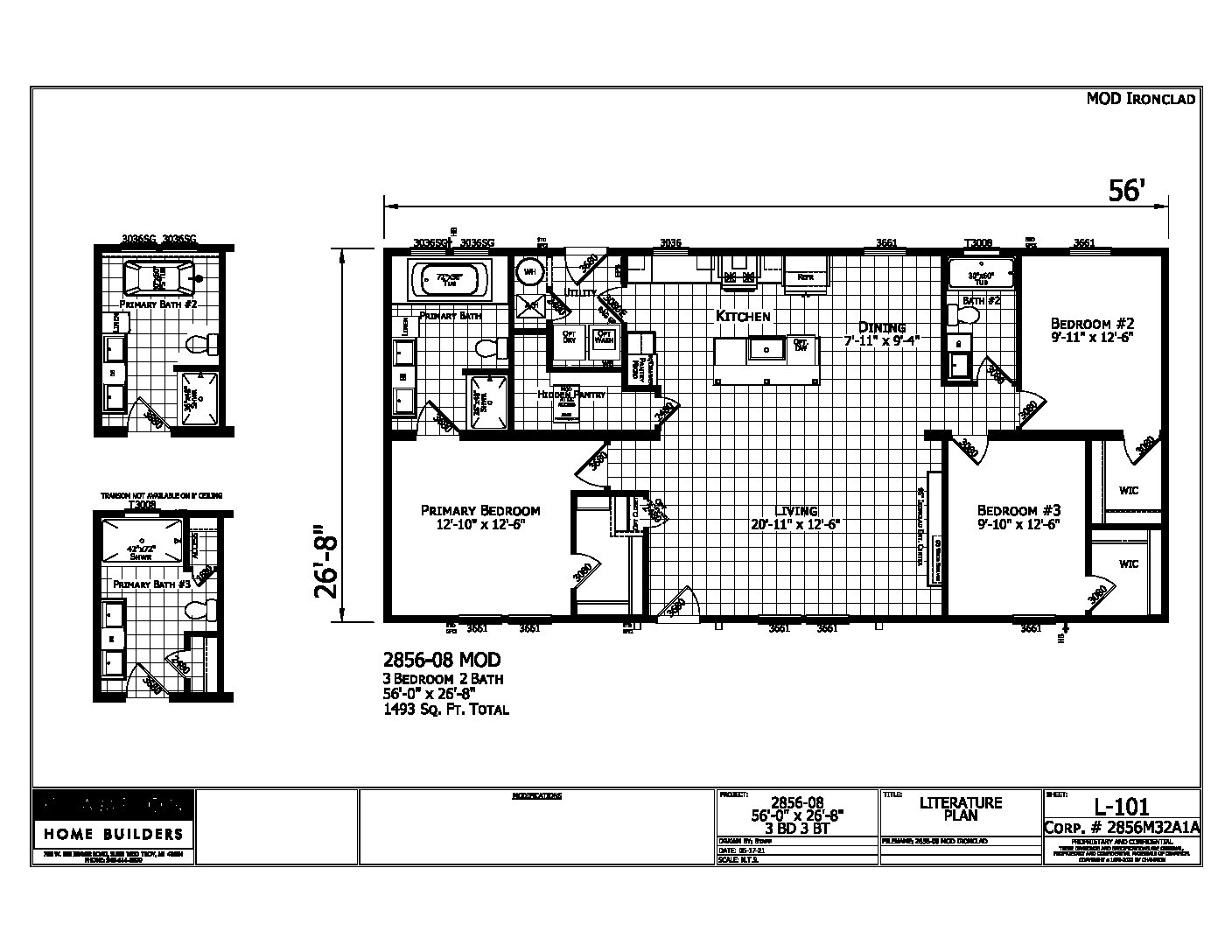
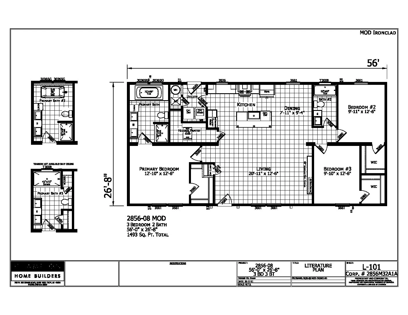
The Ironclad Elite 2856 is one of a series of affordable new models introduced by Champion. These homes have a high level of features but changes are limited .. hence the price. This particular model features 3 bedrooms and 2 bathrooms with an open floor plan boasting a large integrated great room, dining area, and kitchen (and huge pantry). If you are looking for a spacious home with tons of character at an affordable price, then the Ironclad series for you. Our team is ready to help you through every step of the home building process.
Speak to a knowledgable CCH agent!
Monday - Friday: 9am - 5pm
Saturday: 10am - 5pm
Sunday: Closed
