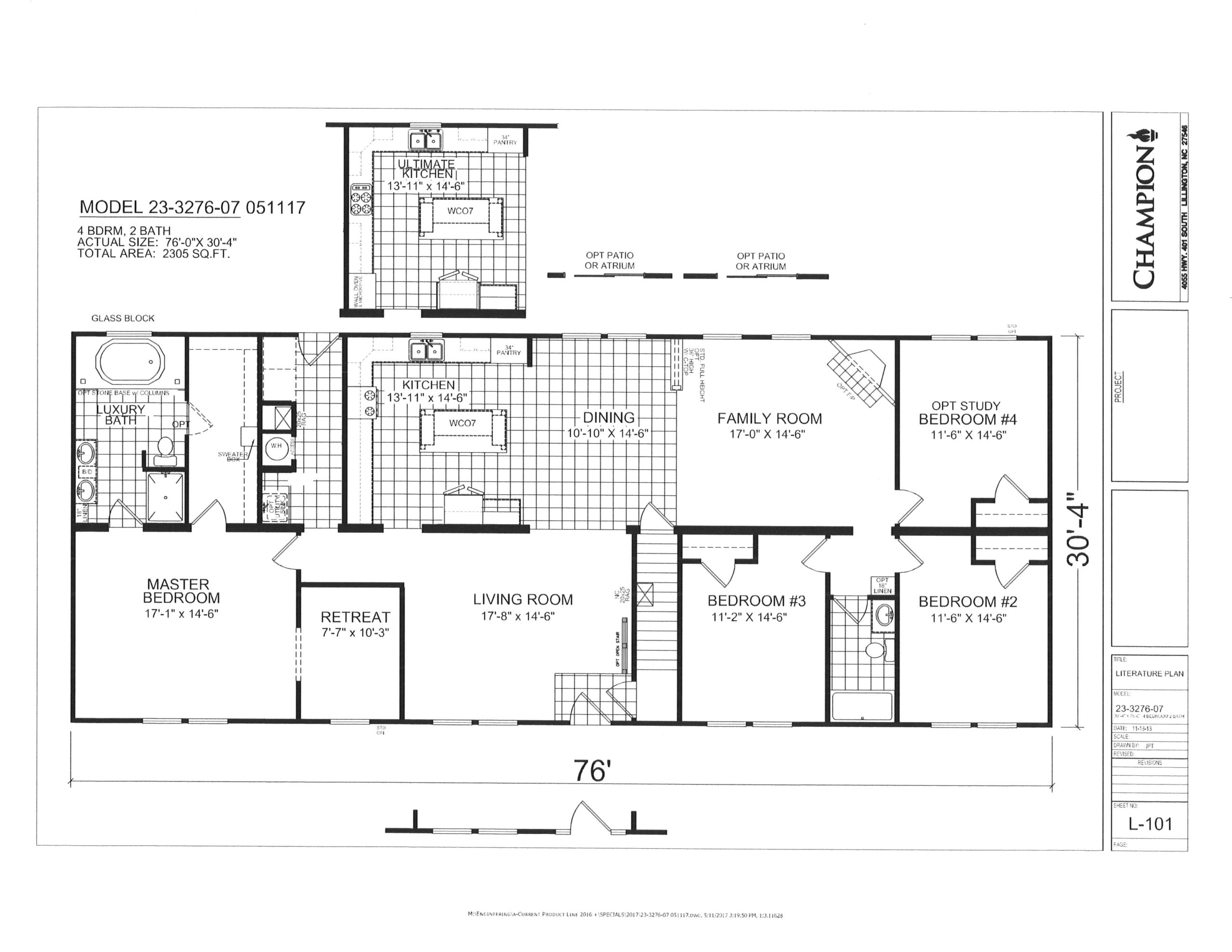
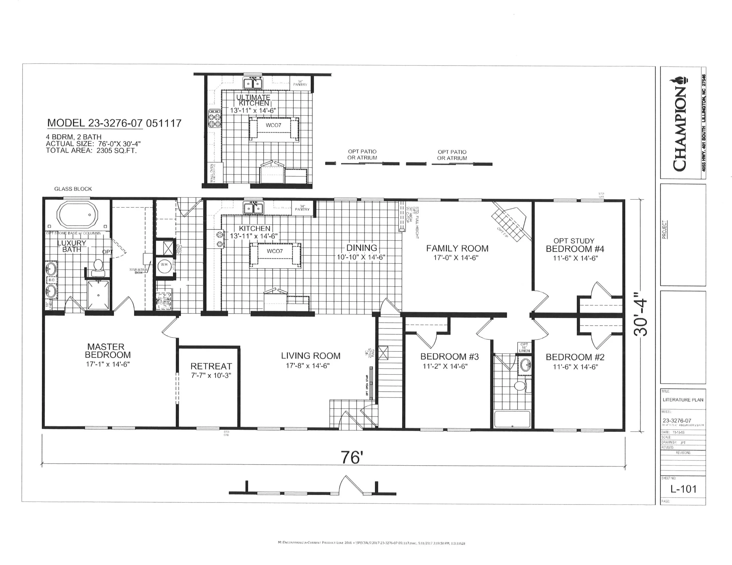
The Kingsley is an expansive family home with 4 bedrooms, 2 bathrooms, a family room, sitting room, and more. This home is often sold as a Cape Cod, giving families plenty of opportunity to build out an additional 1,200+ sq. ft. of space and other custom features. Our team can walk you through our home building process and help you get started.
Speak to a knowledgable CCH agent!
Monday - Friday: 9am - 5pm
Saturday: 10am - 5pm
Sunday: Closed
