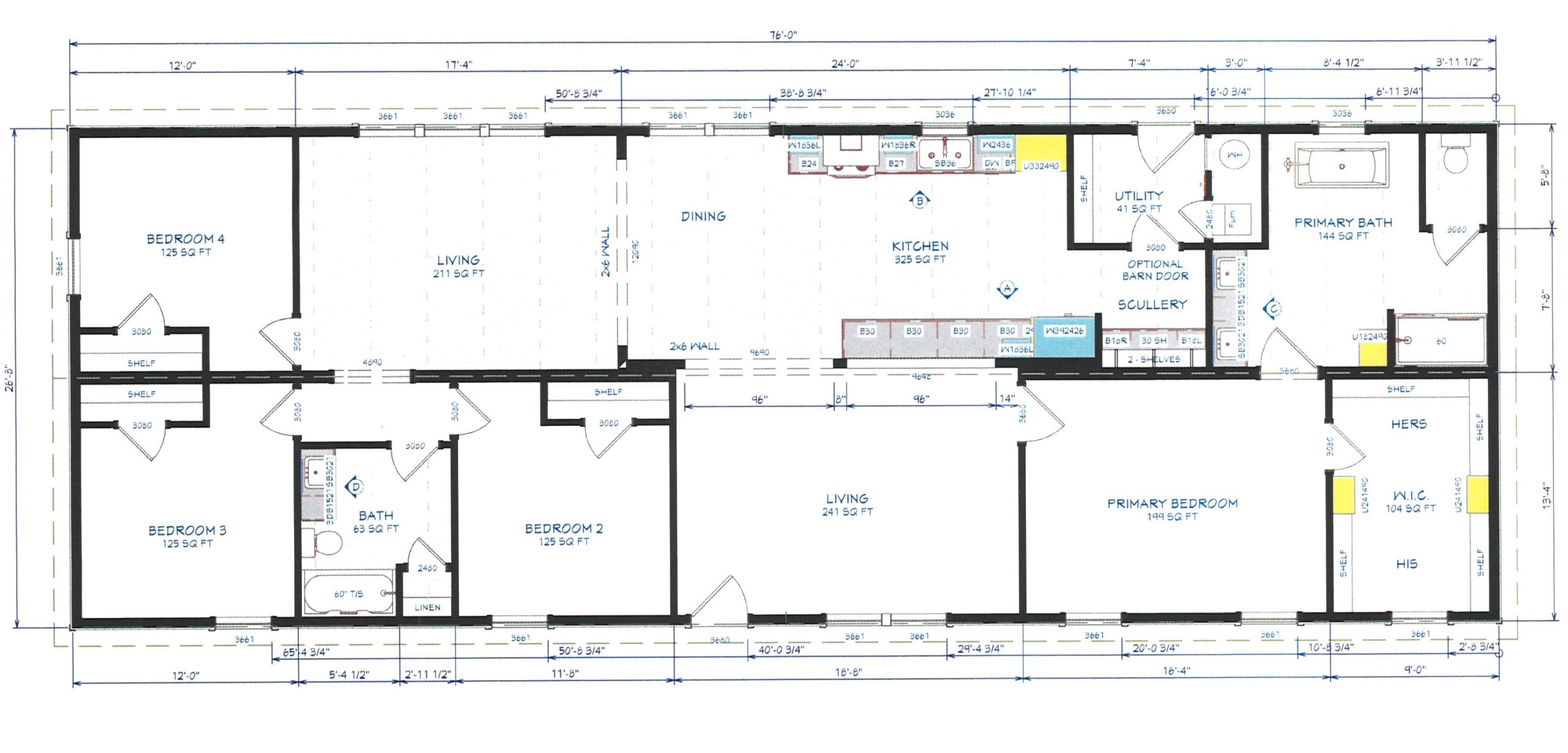
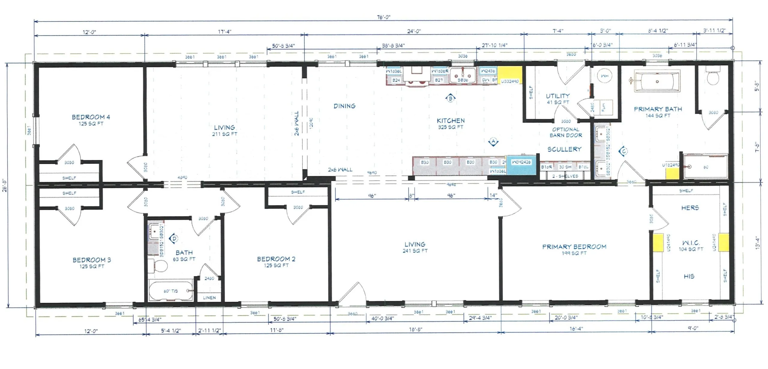
The Oakland features 4 bedrooms, 2 bathrooms, and a large family room plus a large integrated great room, dining area, and kitchen. If you need a large affordable home that is easily accessible, then The Oakland is for you. You can customize your home with additional features, and our team will help you through every step of the home building process.
Speak to a knowledgable CCH agent!
Monday - Friday: 9am - 5pm
Saturday: 10am - 5pm
Sunday: Closed
