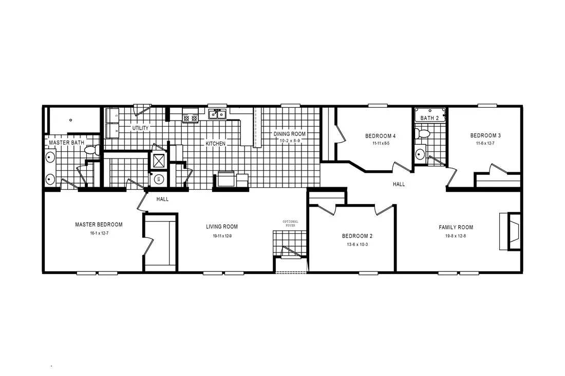
The Prosperity features 4 bedrooms, 2 bathrooms, a large integrated great room, dining area, and kitchen. It also offers plenty of space for you and your family. If you are looking for ease and style, then The Prosperity is for you. You can customize your home with additional features, and our team will help you through every step of the home building process.
Speak to a knowledgable CCH agent!
Monday - Friday: 9am - 5pm
Saturday: 10am - 5pm
Sunday: Closed
